- Woonoppervlakte
- Circa 107 m²
- Perceeloppervlakte
- Circa 128 m²
- Bouwjaar
- Gebouwd in 1966
- Aantal kamers
- 5 kamers (4 slaapkamers)
De woning beschikt over een solide basis en is door de jaren heen op belangrijke punten gemoderniseerd. Zo zijn de badkamer en het toilet in 2022 vernieuwd en is de woning grotendeels voorzien van kunststof kozijnen en isolerende beglazing. Met 8 zonnepanelen (eigendom, 2018), rolluiken op nagenoeg de gehele woning en twee airco’s (2024) is er bovendien sprake van een comfortabel en energiezuinig geheel.
De ligging maakt het geheel extra aantrekkelijk. De woning bevindt zich in de geliefde Vogeltjesbuurt, een wijk die bekend staat om haar gemoedelijke sfeer. Op korte afstand vind je parken, speelvoorzieningen en waterpartijen. Scholen, winkels en sportvoorzieningen liggen binnen handbereik. Het centrum van Wijchen en het NS-station zijn eenvoudig per fiets bereikbaar en via de nabijgelegen uitvalswegen ben je snel onderweg richting Nijmegen en de A73.
Bijzonderheden:
- Hoekwoning met garage/berging
- Rustige ligging in hofje met parkeergelegenheid naast de woning
- 8 zonnepanelen (eigendom, 2018)
- Badkamer en toilet vernieuwd in 2022
- Twee airco’s (2024; koelen en verwarmen)
- Grotendeels kunststof kozijnen
- Rolluiken nagenoeg gehele woning
- Remeha cv-ketel (eigendom, 2018)
- Plat dak keuken en berging vernieuwd (2023/2024)
- Circa 11 m2 van de voortuin wordt gehuurd van de gemeente Wijchen
- Ouderdoms- en asbestclausule van toepassing.
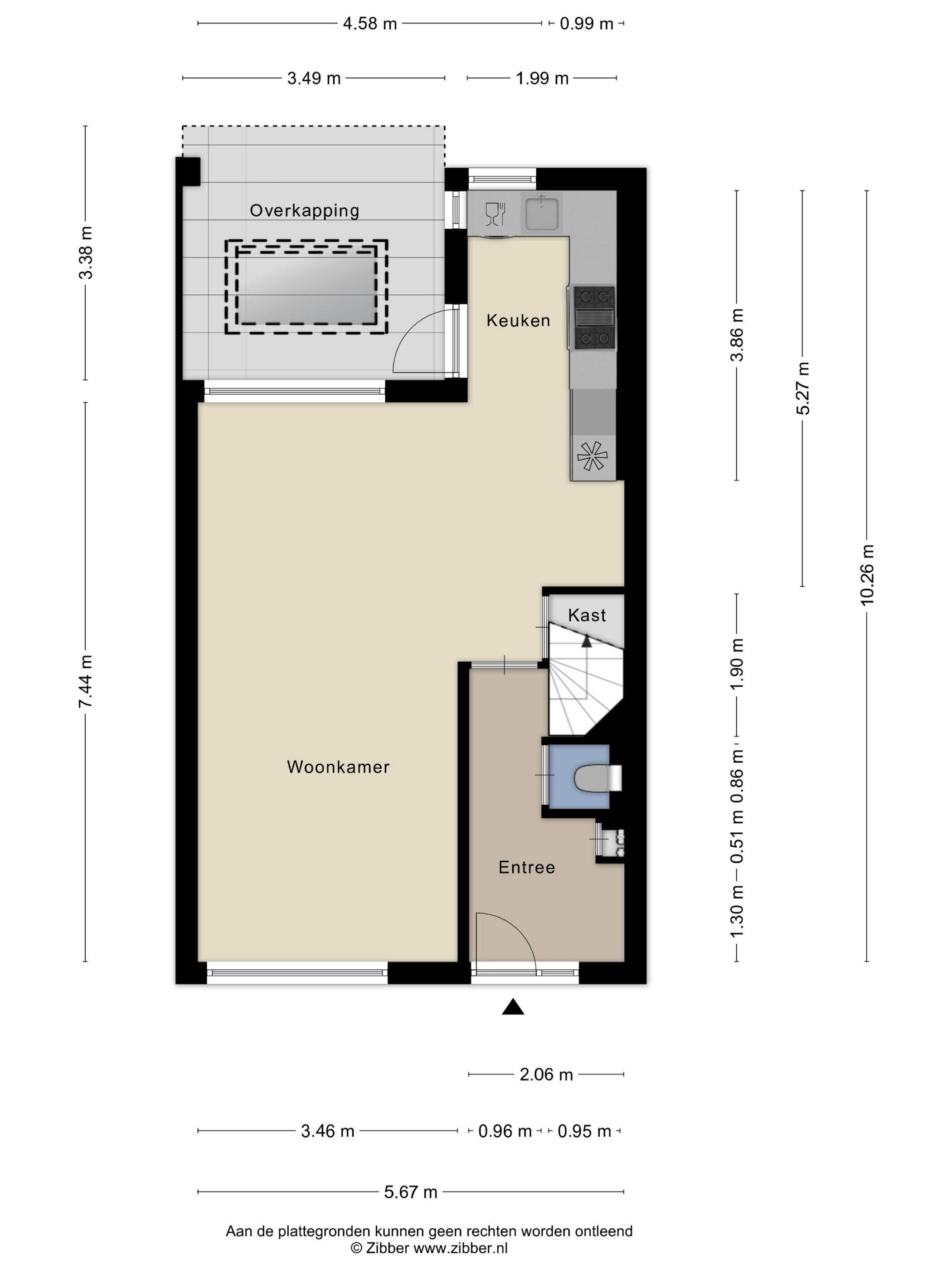
Indeling
Begane grond:
Hal met meterkast, moderne toiletruimte en trapopgang. De doorzonwoonkamer is licht en ruim en voorzien van een airco. Aan de achterzijde bevindt zich de uitgebouwde keuken in een praktische opstelling met diverse inbouwapparatuur, waaronder een 5-pits gasfornuis met oven, afzuigkap, koelkast en vaatwasser. Vanuit de keuken heb je toegang tot de achtertuin met een sfeervolle overkapping voorzien van een lichtkoepel – een heerlijke plek om in de zomer buiten te eten met vrienden en familie.
Eerste verdieping:
Overloop met toegang tot twee royale slaapkamers. De oorspronkelijke indeling met drie slaapkamers is relatief eenvoudig terug te brengen. De master bedroom is vergroot en beschikt over een inloopkast en een eigen airco. Daarnaast is de voormalige douche in gebruik als wasruimte. De moderne badkamer (voorheen slaapkamer) is stijlvol afgewerkt en voorzien van een ligbad, inloopdouche, dubbele wastafel en 2e toilet.
Tweede verdieping:
Via een vaste trap bereikbare zolderverdieping met twee slaapkamers en een dakkapel. Ook hier bestaat de mogelijkheid om de indeling aan te passen, bijvoorbeeld door het realiseren van één grotere kamer. Daarnaast is er praktische bergruimte aanwezig.
Buitenruimte
De knusse achtertuin is recent opnieuw aangelegd en beschikt over een terrasoverkapping met lichtkoepel en een achterom. De vrijstaande garage/berging is voorzien van een kanteldeur en elektra.
Overdracht
- Vraagprijs
- € 392.000 k.k.
- Status
- Beschikbaar
- Aanvaarding
- In overleg
Bouw
- Object type
- Eengezinswoning, eindwoning
- Soort bouw
- Bestaande bouw
- Bouwjaar
- 1966
- Soort dak
- Zadeldak bedekt met pannen
Oppervlakte en inhoud
- Woonoppervlakte
- 107 m²
- Perceeloppervlakte
- 128 m²
- Inhoud
- 378 m³
- Externe bergruimte
- 20 m²
- Gebouwgeb. buitenruimte
- 12 m²
Indeling
- Aantal kamers
- 5 kamers (4 slaapkamers)
- Aantal badkamers
- 1 badkamer
- Badkamervoorzieningen
- Ligbad, toilet, dubbele wastafel, wastafelmeubel, inloopdouche
- Aantal woonlagen
- 3 woonlagen
- Voorzieningen
- Rolluiken, tv-kabel, airconditioning, dakraam, glasvezel kabel, zonnepanelen
Energie
- Energielabel
- C
- Energielabel registratie
- 10-03-2017
- Isolatie
- Dubbel glas
- Verwarming
- Cv-ketel
- Warm water
- Cv-ketel
- Cv ketel
- Remeha combiketel gas gestookt uit 2018 (eigendom)
Buitenruimte
- Ligging
- Aan rustige weg, in woonwijk
- Tuin
- Achtertuin, voortuin
- Afmetingen achtertuin
- 47 m² (8.25 meter diep en 5.75 meter breed)
- ligging tuin
- Gelegen op het noorden en bereikbaar via achterom
Garage
- Soort garage
- Vrijstaand steen
- Capaciteit
- 1 auto
- Voorzieningen
- Elektra
Parkeergelegenheid
- Soort parkeergelegenheid
- Openbaar parkeren
Indicatie hypotheeklasten
Eigen inleg:
Spaargeld / overwaarde
Rente:
Laagste 10-jaars rente
Laagste 10-jaars rente
2,78% - Centraal Beheer - NHG
3,04% - Centraal Beheer - 80%
Laagste 20-jaars rente
3,29% - Centraal Beheer - NHG
3,52% - Centraal Beheer - 80%
Laagste 30-jaars rente
3,41% - Centraal Beheer - NHG
3,7% - Argenta - 80%
Hypotheek:
Bruto maandlasten: € 0 p/m
Netto maandlasten: € 0 p/m
Hoe berekenen we dit?
Het rentepercentage is gebaseerd op de laagste 10 jaars vaste rente voor één hypotheekdeel. De vermelde rente (2.78% met NHG) is gecontroleerd op 13-04-2026. Deze berekening is gebaseerd op een annuïteitenhypotheek die volledig wordt afgelost, waarbij de maandlasten gedurende de gehele looptijd gelijk blijven. De werkelijke rente en netto maandlasten kunnen variëren, afhankelijk van uw persoonlijke situatie en de hypotheekverstrekker. Raadpleeg een financieel adviseur voor een nauwkeurige berekening en advies. Aan deze berekening kunnen geen rechten worden ontleend; het dient enkel als indicatie.
Documentatie
Kadastrale kaart
Leefomgeving
Plattegronden PDF
WOZ waarderapport
BAG uittreksel
Brochure
Bezoek onze website
Inloggen move.nl
Bezichtiging
Bod uitbrengen
Waardebepaling
Zoekopdracht
Alles downloaden
Zonnegrenzen bekijken
Inwoners in Wijchen
Cijfers voor postcodegebied 6601
- Totaal aantal inwoners
- 36260 inwoners
- Mannen
- 49%
- Vrouwen
- 51%
Inwoners in Wijchen
Cijfers voor postcodegebied 6601
- tot 15 jaar
- 12%
- 15 tot 25 jaar
- 13%
- 25 tot 35 jaar
- 19%
- 45 tot 65 jaar
- 34%
- 65 en ouder
- 21.7%
Huishoudens in Wijchen
Cijfers voor postcodegebied 6601
- Eenpersoons zonder kinderen
- 27%
- Meerpersoons zonder kinderen
- 32%
- Huishoudens zonder kinderen
- 59%
Huishoudens in Wijchen
Cijfers voor postcodegebied 6601
- Huishoudens met één kind
- 20%
- Huishoudens met meerdere kinderen
- 21%
- Huishoudens met kinderen
- 41%
Woningen in Wijchen
Cijfers voor postcodegebied 6601
- Woningen voor 1945
- 2%
- Woningen tussen 1945 en 1965
- 5%
- Woningen tussen 1965 en 1975
- 49%
- Woningen tussen 1975 en 1985
- 19%
- Woningen tussen 1985 en 1995
- 3%
Woningen in Wijchen
Cijfers voor postcodegebied 6601
- Woningen tussen 1995 en 2005
- 5%
- Woningen tussen 2005 en 2015
- 15%
- Woningen na 2015
- 2%
- Huurwoningen
- 40%
- Koopwoningen
- 60%
Overige in Wijchen
Cijfers voor postcodegebied 6601
- Gemiddelde WOZ waarde
- € 309.000,-
- Personen onder de 65 met uitkering
- 10%
Overige in Wijchen
Cijfers voor postcodegebied 6601
- Adressen per km²
- 1700
- Stedelijkheid (schaal 1 op 5)
- 80%
Korte feiten over Wijchen
Wijchen is de hoofdplaats van de gemeente Wijchen in de Nederlandse provincie Gelderland. De plaats is met 36.625 inwoners (op 1 januari 2021) de grootste in de gelijknamige gemeente van bijna 41.000 inwoners. Wijchen ligt aan de zuidgrens van Gelderland, tegen Noord-Brabant aan.
Indien u vragen heeft of u wilt een bezichtiging inplannen, dan kunt u gebruik maken van het formulier hiernaast. Er zal daarna op korte termijn contact met u worden opgenomen.
Kasteellaan 23
6602 DB, Wijchen
024 64 90100 binnendienst@driessenmakelaardij.nl www.driessenmakelaardij.nlContact opnemen
Al 40 jaar uw huismakelaar
Ondernemende makelaar met ambitie
U wilt een huis kopen, verkopen of laten taxeren. Het liefst schakelt u een betrouwbare makelaar in bij u in de buurt. Maar hoe vindt u precies de makelaar die het best bij u past? Het aanbod is al zo groot.
Driessen Makelaardij maakt uw keuze een stuk gemakkelijker. Hoe? Allereerst zijn we al veertig jaar een begrip in de regio. Met een kantoor in Wijchen en in Nijmegen kennen wij de lokale huizenmarkt op ons duimpje. En niet onbelangrijk: de huizenmarkt kent ons. ‘Want vaak is de eerste stap van een woningzoeker de stap naar ons kantoor.’ Hierdoor weten wij vraag en aanbod snel bij elkaar te brengen en perfect in te spelen op de wensen van klanten en potentiële klanten. Bovendien zijn we aangesloten bij de NVM, de grootste brancheorganisatie in de makelaardij. Onze mensen zijn dus uitstekend in staat het hele aan- en verkooptraject van begin tot eind professioneel te begeleiden.
Uw ambitie is onze ambitie. Dat wil zeggen: u verwacht van ons dat we tot het uiterste gaan u die kwaliteit te bieden waarom we al zo lang bekend staan. Daar mag u ons aan houden!
Nieuwste reviews
-
Homberg 1301
Pim Driessen en zijn team hebben ons uitstekend begeleid bij het vinden en kopen van onze nieuwe woning en verkopen van onze oude woning. Ze...
-
Flamingostraat 22
Goede begeleiding, en je kunt altijd met tussentijdse vragen terecht.Ook de verkoop/koop begeleiding, naar kopers en verkopers verliep heel...
-
Kerkstraat 3
Bijzonder vriendelijk, attent en deskundig. Persoonlijke benadering en ook afstemming en maatwerk op de klant. Dit is wat een verkoper van e...